
When one hears the name ‘Salk,’ most people think of Jonas Salk, the man who created the first successful polio vaccine. But when a modernist hears the name ‘Salk,’ their mind goes straight to the architectural showstopper that is the Salk Institute.
First commissioned by Jonas Salk in 1959, the Salk Institute is an expansive laboratory that sits upon the California coast. Salk wanted to create a biological research facility that could serve scientists for generations to come and picked architect Louis Kahn as the man for the job.

The Salk Institute’s Beginnings
Estonia-born Kahn had previous experience designing an award-winning laboratory for the University of Pennsylvania, and Salk believed him to be the best choice to “create a facility worthy of a visit by Picasso.” Kahn completed the Salk Institute in 1965 and it’s still open and in use today.
According to the Salk Institute, “Salk directed Kahn to create spacious, unobstructed laboratory spaces that could be adapted to the ever-changing needs of science. The building materials had to be simple, strong, durable, and as maintenance-free as possible.”
Kahn certainly delivered.

The Salk Institute’s Form
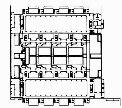
Kahn constructed a laboratory that was made up of 29 different structures, with two six-story main buildings that held the laboratories themselves. Surrounding the labs were smaller towers that held offices and study spaces for scientists and faculty.

It was important to Salk that the labs felt bright and inspiring, so Kahn designed them with large, glass-paned walls, allowing the California sunshine to reach every nook and cranny. And because there were two floors underground, Kahn constructed huge light wells to let daylight shine even in the lowest floors.
The Salk Institute was also built to be as maintenance free as possible, so Kahn used sturdy, long-lasting materials like concrete, teak and steel. In fact, the building looks largely the same as it did in the 60s, barring a teak restoration completed in recent years by the Getty Conservation Institute.
The Salk Institute’s Function
Another defining feature of the Salk Institute is its flexibility— with each laboratory having an open, unobstructed layout, the space can easily morph to fit the needs of changing or new sciences.

This concept is seen in other ways too, as Kahn placed the mechanical systems in areas where they could be easily moved around (instead of behind a wall), built windows that could be unscrewed and constructed support beams that wouldn’t interfere with a space’s future needs.
ArchDaily calls Kahn’s flexible designs a “masterful interplay of material and space,” and his hard work 60 years ago has paid off— over the years, half a dozen Nobel Laureates have worked in the Salk Institute.

Looking for more Mid Mod expertise? Check out this post on Herman Miller. And of course, don’t forget to follow us on Instagram, Facebook and Pinterest for more Atomic Ranch articles and ideas!